Perched above the crystalline waters of Skaneateles Lake, Storybook Cottage is a complete new build designed to feel as though it has always belonged to the land. Envisioned, designed, and built by a highly collaborative team including Eggleston & Krenzer Architects, PC led by architect Bob Eggleston, builder Don Petrocci, and the Lindsay Laine Interiors design team, this home is a true collective creation, thoughtfully shaped from the ground up.

Inside, the home unfolds in a continuous, nature-inspired palette rooted in the landscape: mossy greens, soft creams, warm browns, and grounding charcoals. No wall is finished with conventional drywall; instead, the entire home is wrapped in a light plaster that adds movement, texture, and softness. Paired with reclaimed wood flooring, wall cladding, ceiling treatments, and substantial exposed beams, the environment feels organic, tactile, and deeply comforting.

Storybook Cottage is designed to be lived in, loved in, and lingered in. Every detail, every timber, every nook was crafted to create a home that feels like an embrace: warm, grounded, timeless.

NEW BUILD LAKEHOUSE

Project Storybook Cottage

The Exterior Model

The exterior and interior are richly layered with reclaimed wood and timber elements sourced from New Energy Works and Pioneer Millworks, whose raw materials set the tone for the home’s warm, grounded aesthetic. Every board, beam, and timber contributes to the sense that this cottage is woven directly from the natural surroundings.

Every space is intentionally connected. Materials evolve from room to room, yet a common thread of warmth and coziness weave through the entire home. A sculptural floor-to-ceiling stone fireplace. It is double-sided to offer fireside moments in both the gathering room and the primary suite. It serves as a central anchor. Slate flooring and quartzite countertops add a refined earthiness that deepens the connection to the surrounding landscape.

The Exterior

The First Floor Model

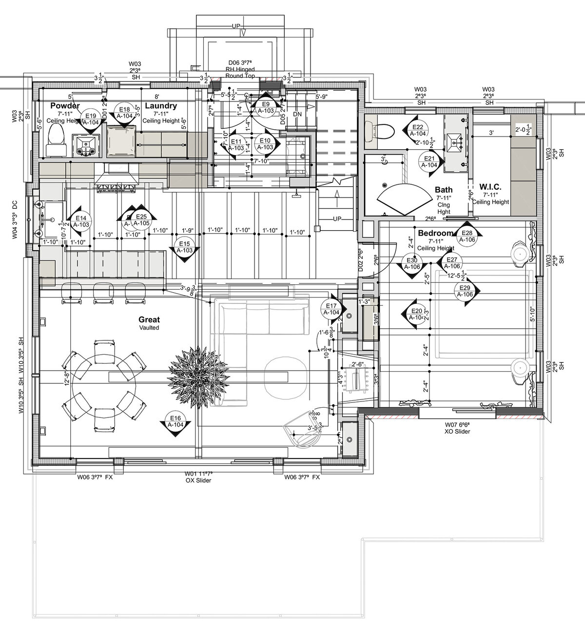
The Primary Suite

The Kitchen + Living + Dining

The Entry + Laundry + Powder Bath

At the heart of the main level, the kitchen, dining room, and gathering room open to sweeping views of the lake. The architecture of the windows on this elevation was meticulously planned to maximize the panorama. The wood-trimmed frames capturing blue water, shifting light, and ever-changing skies. Even the loft and bunk room on the second floor enjoy a slice of this view through a beautifully detailed wall of windows.

The First Floor

The Second Floor Model

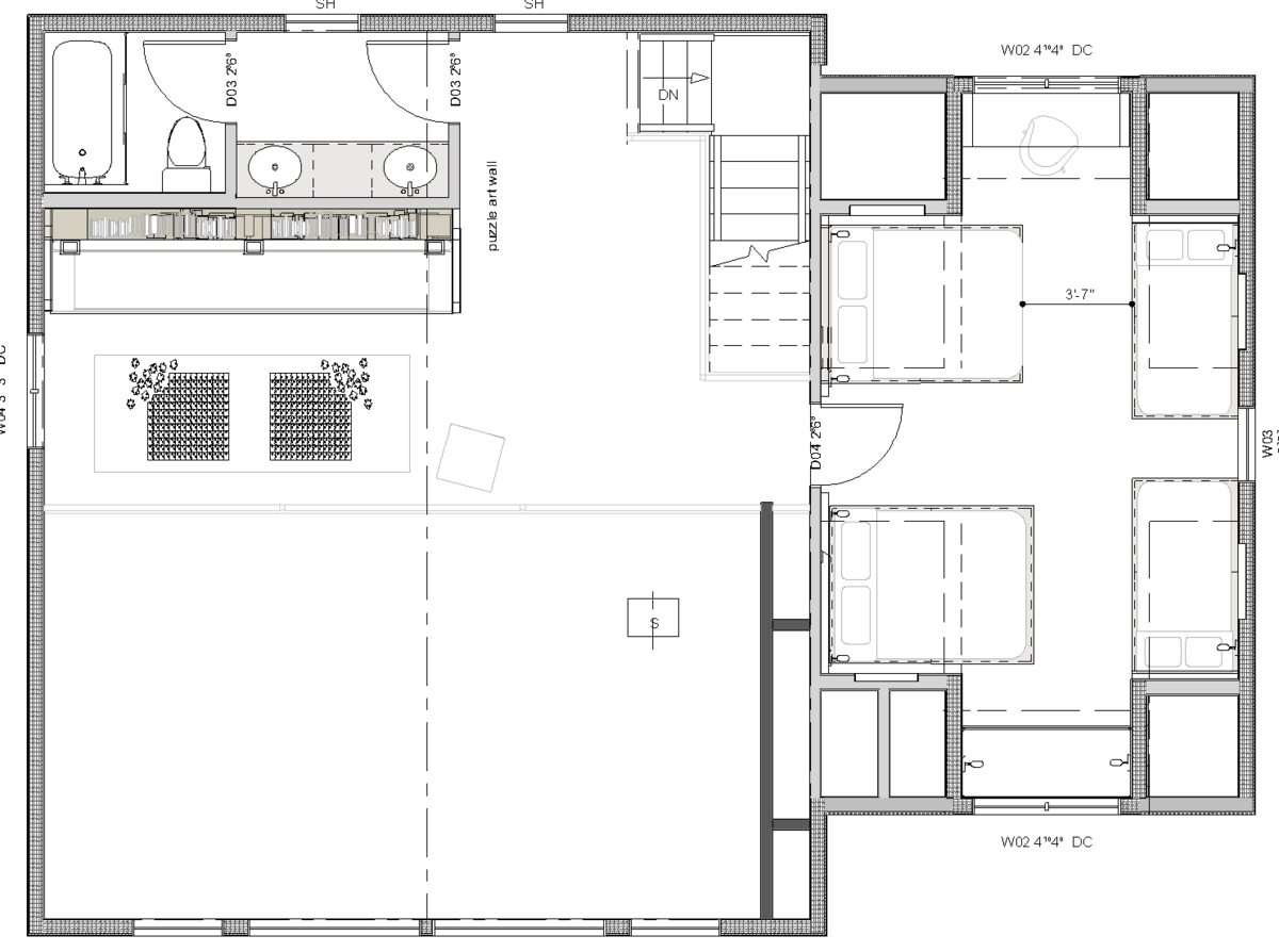
The Bunk Room + Bath

The Loft

The second floor was designed for charm, retreat, and imagination. A built-in reading and puzzle nook in the loft invites slow moments and quiet afternoons, while the storybook-inspired bunk room offers whimsical, built-in sleeping quarters perfect for guests and sleepovers.

The Second Floor

The Lower Level Model

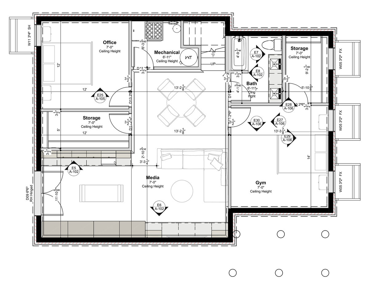
On the lake level, the “lake hall” replaces a traditional mudroom. This hardworking, beautiful space ensures wet towels, lake gear, and everyday items are neatly stowed. A built-in beverage bar keeps refreshments at the ready, while a cozy lounge with a sectional invites the family to gather for movies after long days on the water. A guest bedroom and an office/fitness room complete this level and all finished with the same wood and plaster details found throughout the home.

The Lake Level

Have a project? Get in touch and let's get started!

contact us